T369 | Corsico
AMPIO TRILOCALE IN VENDITA A CORSICO
Vendita
€ 215.000
Descrizione:
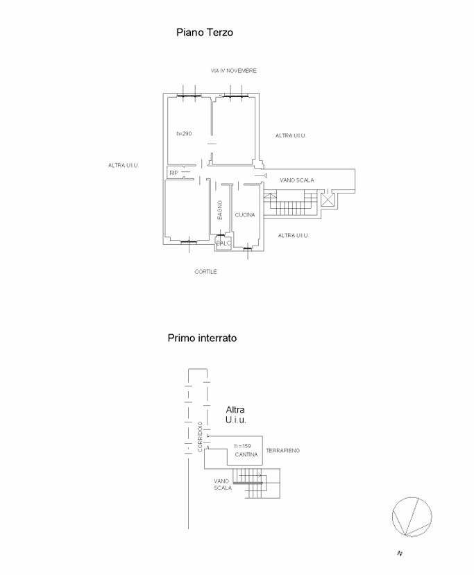
In contesto residenziale tranquillo proponiamo in vendita luminoso trilocale al terzo piano con ascensore. L’appartamento, situato in uno stabile anni ’50 recentemente riqualificato nelle parti comuni, è costituito da un corridoio d’ingresso che ben distribuisce i vari ambienti: cucina abitabile, bagno con balconcino verandato, camera matrimoniale, luminoso soggiorno e ampia seconda camera, perfetta anche come studio o locale hobby, oltre ad un comodo ripostiglio attrezzato. Il piano alto e la doppia esposizione garantiscono all’immobile ottima luminosità durante tutto l’arco della giornata ed una gradevole vista aperta sul contesto residenziale circostante. L’appartamento si presenta in buone condizioni di manutenzione generale ed è parzialmente arredato con soluzioni d’arredo che possono essere cedute all’acquirente in caso di interesse. Riscaldamento con termosifoni mediante teleriscaldamento, che distribuisce acqua calda prodotta in remoto tramite tubazioni sotterranee fino agli utenti, offrendo vantaggi significativi in termini di sostenibilità ambientale, sicurezza e miglioramento dell'efficienza energetica con conseguente riduzione dei costi di manutenzione. Acqua calda autoprodotta mediante bolier a gas. Lo stabile si presenta in ordine: la facciata è stata oggetto di rifacimento, come pure il tetto; la cabina ascensore è stata recentemente sostituita, così come l'autoclave, il portone e i citofoni. Completa la proprietà una cantina al piano interrato. La zona ha nelle vicinanze tutti i servizi necessari come scuole, farmacie, supermercati, ristoranti, parchi, palestre. Comodi e frequenti i collegamenti con Milano: la fermata dell'autobus è a circa 100 metri, mentre la stazione ferroviaria che collega Corsico a Milano-S. Cristoforo e Romolo dista circa 200 metri. L'appartamento è libero subito e, essendo arredato, può essere immediatamente abitabile.
Dettagli:
- Prezzo:€ 215.000
- Sp. Condominiali:€ 3.360
- Superficie:88 mq
- Anno di Costruzione:
- Piano:3 su 6 con ascensore
- Stato:Originale / Abitabile
- Camere:2
- Cucina:Abitabile
- Bagni:1
- Riscaldamento:Centralizzato
- Condizionamento:-
- Classe energeticaF IPE: 123,93 kWh/mqa
Location:
Via XXV Aprile, 11


