T515 | Solari
VENDESI AL PIANO ALTO PLURILOCALE RISTRUTTURATO
Vendita
€ 1.790.000
Descrizione:
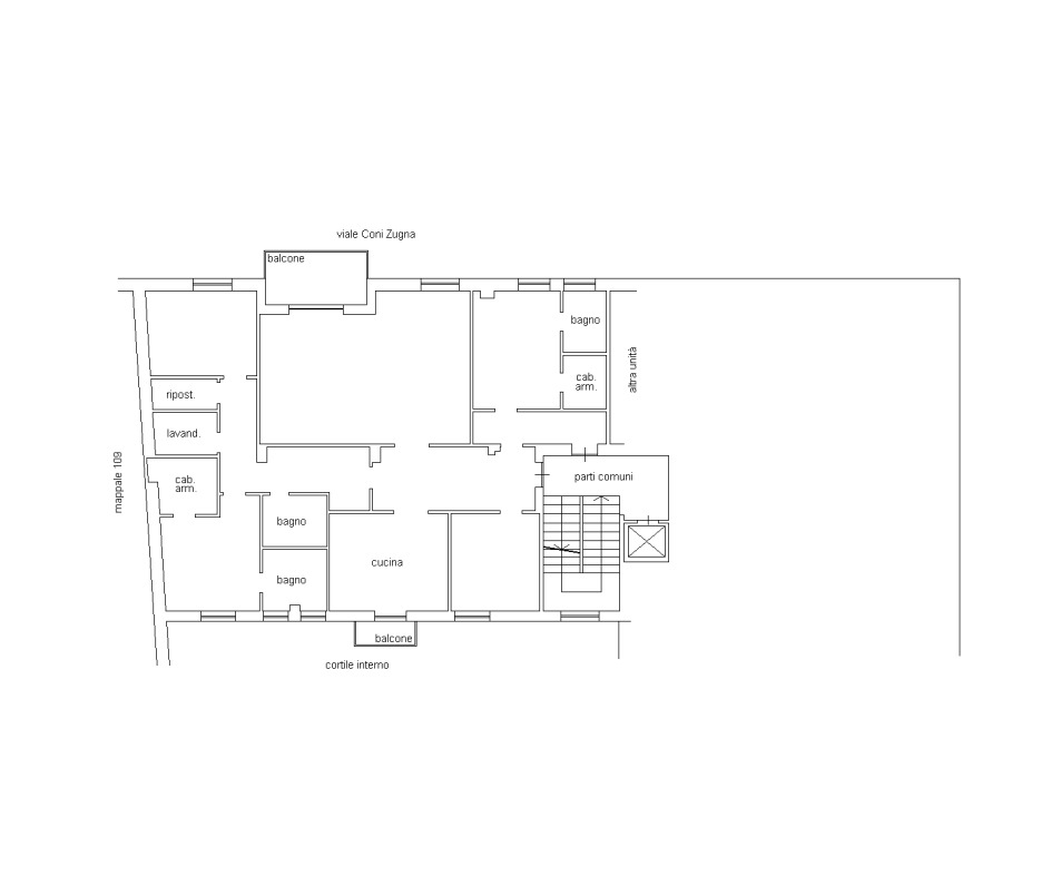
MM4 Coni Zugna – MM2 Piazza Sant’Agostino: esclusivo appartamento panoramico con doppi ingressi in zona Solari. Proponiamo in esclusiva una prestigiosa residenza situata al quinto piano di un elegante stabile anni ’70, dotato di servizio di portineria, ascensore e di un ampio giardino condominiale. L’immobile sorge in una delle aree più richieste e rinomate di Milano, a pochi passi dalle fermate MM4 Coni Zugna e MM2/MM4 Piazza Sant’Agostino, garantendo collegamenti rapidi con l’intera città, con l’aeroporto di Linate e con tutti i principali servizi della zona. Nelle immediate vicinanze si trovano attività commerciali, ampie aree verdi, scuole, l’Università Cattolica e diversi centri sportivi. L’ingresso si apre su un ampio disimpegno con guardaroba, cucina abitabile con balcone affacciato sul cortile condominiale, un luminoso soggiorno doppio con sala da pranzo e loggia, un ampio studio/camera con affaccio interno e seconda camera, che dispone di bagno finestrato, cabina armadio e ingresso indipendente, mentre la zona notte, ben separata dalla zona giorno, si sviluppa attraverso un corridoio arredato su misura con armadiature a tutta altezza. Completano la proprietà un bagno con vasca, una spaziosa camera matrimoniale con bagno en suite e grande cabina armadio, un ripostiglio, una lavanderia e una quarta camera. La doppia esposizione regala una splendida vista panoramica sul parco Solari e un’elevata luminosità in ogni ambiente. L’appartamento è stato completamente ristrutturato a nuovo e valorizzato da un design moderno e funzionale: pavimenti in rovere, boiserie su misura e finiture ricercate conferiscono un’eleganza senza tempo. La presenza dei doppi ingressi e la pianta regolare offrono inoltre grande versatilità, permettendo anche un’eventuale suddivisione in più unità abitative. L’immobile è dotato di porte blindate, parquet in tutti gli ambienti comuni, infissi con doppi vetri, videosorveglianza, impianto di antifurto, aria condizionata canalizzata e riscaldamento centralizzato a termosifoni. La richiesta è di Euro 1.790.000,00, comprensivi degli arredi fissi quali la cucina, le armadiature su misura, le cabine armadio e le librerie. Box nello stabile Euro 110.000,00. Posto motociclo in cortile a rotazione.
Dettagli:
- Prezzo:€ 1.790.000
- Sp. Condominiali:€ 6.000
- Superficie:180 mq
- Anno di Costruzione:1970
- Piano:5 su 6 con ascensore
- Stato:Ristrutturato
- Camere:4
- Cucina:Abitabile
- Bagni:3
- Riscaldamento:Centralizzato
- Condizionamento:Sì
- Classe energeticaG IPE: 175 kWh/mqa
Location:
Viale Coni Zugna, 37


